COZYの中古住宅専門店
札幌の中古住宅+リフォーム
リフォーム実績500件以上

COZYの中古住宅専門店 TOP > 販売物件 > 4LDK > JR「手稲」駅までバス乗車10分!新発寒7条10丁目

販売物件 ESTATE

中古戸建リフォーム済み
JR「手稲」駅までバス乗車10分!新発寒7条10丁目

販売価格
3,090万円(税込)
月々支払い例
77,404

頭金0円/ボーナス払い0円

※40年返済 ※3年固定金利0.95%

■リフォーム工事中!(2026年5月中旬完成)
■JR「稲積公園」駅 徒歩28分!
■JR「手稲」駅 バス乗車10分!
■地下鉄東西線「宮の沢」駅 バス乗車20分!
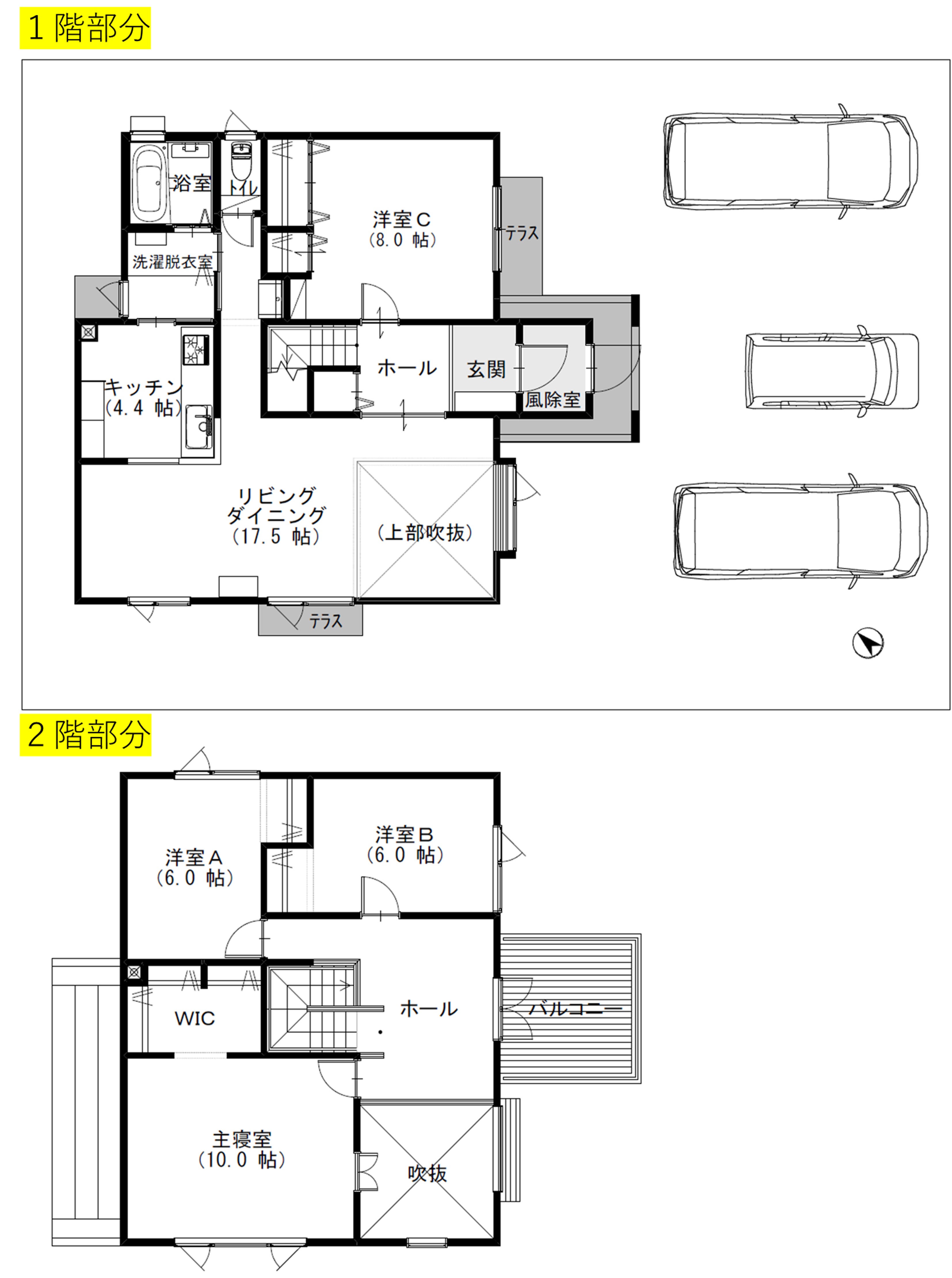
■土地約70坪!建物約40坪4LDK!

リフォーム内容

キッチン交換/ユニットバス交換/洗面化粧台交換/トイレ交換/全室フローリング上張り/クッションフロア貼替/全室クロス貼替/建具交換/照明&カーテン取付/給湯ボイラー交換/給水給湯配管交換/食器棚新設/ブレーカー交換/インターホン交換/シューズクローゼット交換/和室→洋室化/一部サッシ交換/一部網戸交換/ロールスクリーン取付/外壁塗装・一部貼替/屋根塗装/外構工事(駐車場増設) ※リフォーム内容は予告なく変更となる場合がございます。

リビング

広々21.9帖のLDK♪ コーディネーターがお家をフルコーディネートしています!

リビング

明るさと開放感をもたらす吹抜があり、気持ちの良いリビング♪

リビング

全室のカーテン・照明も標準仕様♪

ダイニング

家族だんらんの時間をゆっくりと過ごすことが出来ます♪

キッチン

広々とした4.4帖のキッチン♪ 食器棚や食洗機も標準仕様!

キッチン

使いやすく、家族とのコミュニケーションも増える対面キッチン♪

浴室

窓付きで明るいバスルーム♪

ユーティリティ

清潔感のあるユーティリティ 人気の三面鏡収納付き洗面化粧台を採用!

トイレ

窓もあり、明るい印象のトイレ

2階ホール

フリースペースとしても使える2階のホール♪

玄関

広々とした玄関♪

洋室C

1階にある8.0帖の洋室C 来客時や子どもの遊び場としても便利です♪

主寝室

10.0帖の広々とした主寝室

ウォークインクローゼット

主寝室には便利なウォークインクローゼットも完備されています♪

洋室A

6.0帖の洋室A 全居室収納付きです♪

洋室B

6.0帖の洋室B

交通・地図

所在地 札幌市手稲区新発寒7条10丁目7番22号
最寄駅 JR「稲積公園」駅 徒歩28分
小学校区 新陵小学校 中学校区 新陵中学校
資料を請求する 物件を見に行く

011-213-0701

10:00〜17:00(火・水曜定休)

資料を請求する 物件を見に行く

011-213-0701

10:00〜17:00(火・水曜定休)

物件概要

間取り4LDK 建物面積133.31m²(40.32坪)
土地面積231.39m²(69.99坪) 駐車場(台)3台可(車種による)
築年月(竣工月)1995年11月(築29年) 都市計画市街化区域
建ぺい率/容積率40%/80% 地目宅地
接道状況南東側/幅員8.0m/接道長さ12.74m 地勢
用途地域一種低層 取引態様売主
設備上水道・下水道・電気・個別PG・灯油ボイラー・灯油暖房 建物構造規模木造2階建
引渡し予定月相談 その他制限事項
資料を請求する 物件を見に行く

011-213-0701

10:00〜17:00(火・水曜定休)

周辺環境

  • JR「稲積公園」駅 徒歩28分
  • JR北海道バス「開拓橋」停 徒歩3分
  • 新陵小学校 徒歩14分
  • 新陵中学校 徒歩23分
  • ザ・ビッグエクスプレス前田店 徒歩13分
  • セイコーマート新発寒7条店 徒歩3分
  • ツルハドラッグ手稲前田6条店 徒歩18分
  • DCM手稲前田店 徒歩25分
  • 手稲新発寒郵便局 徒歩19分
  • よまいだ内科 徒歩18分
  • 新発寒ひまわり公園 徒歩1分
  • ドン・キホーテ手稲店 徒歩24分
お問い合わせ物件名
JR「手稲」駅までバス乗車10分!新発寒7条10丁目
お問い合わせ内容(複数回答可)必須
氏名必須
姓:
名:
ご住所必須
郵便番号検索

市区町村
番地丁目
ご連絡先電話番号必須
例:0117378888(ハイフン無し)
メールアドレス必須
例:sample@sapporonavi.jp(半角)
COZYの中古住宅専門店をどこでお知りになりましたか?必須
ご意見やご質問などがありましたらご記入ください

※ ご入力いただきました情報は「個人情報保護について」に従って取り扱われます。
※ 送信できない場合はお手数ですが 011-213-0701 までお問い合わせください。

TOPへ

ジョンソンホームズはレバンガ北海道を応援しています/johnson homes ラウンジシート誕生!ジョンソンホームズはレバンガ北海道を応援しています/johnson homes ラウンジシート誕生!