COZYの中古住宅専門店
札幌の中古住宅+リフォーム
リフォーム実績500件以上

COZYの中古住宅専門店 TOP > 販売物件 > JR「発寒中央」駅 徒歩10分&地下鉄「発寒南」駅 徒歩22分!発寒11条1丁目

販売物件 ESTATE

中古戸建リフォーム済み
JR「発寒中央」駅 徒歩10分&地下鉄「発寒南」駅 徒歩22分!発寒11条1丁目

販売価格
3,790万円(税込)
月々支払い例
94,939

頭金0円/ボーナス払い0円

※40年返済 ※3年固定金利0.95%

■リフォーム済み!(2026年1月下旬完成)
■JR函館本線「発寒中央」駅 徒歩10分!
■地下鉄東西線「発寒南」駅 徒歩22分!
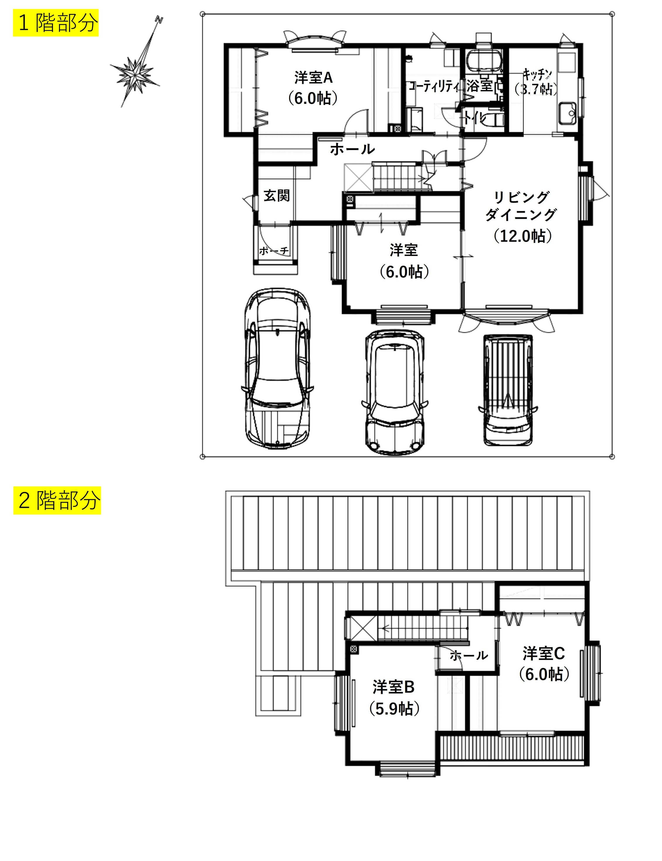
■土地約51坪!建物約31坪4LDK!

リフォーム内容

キッチン交換/ユニットバス交換/洗面化粧台交換/トイレ交換/全室フローリング上張り/クッションフロア貼替/全室クロス貼替/建具交換/照明&カーテン取付/給水給湯配管交換/食器棚新設/給湯ボイラー交換/暖房ボイラー交換/パネルヒーター交換/玄関ドア交換/一部内窓交換/一部網戸交換/ブレーカー交換/インターホン交換/和室→洋室化/シューズクローゼット交換/外壁・屋根塗装 ※リフォーム内容は予告なく変更となる場合がございます。

リビング

12.0帖のリビングダイニング♪ 南向きで陽当たりも良く、明るい空間に♪

リビング

家族だんらんの時間をゆっくりと過ごすことが出来ます♪ 全室のカーテン・照明も標準仕様♪

リビング

コーディネーターがお家をフルコーディネートしています!

ダイニング

家族の会話が弾むダイニング♪

キッチン

3.7帖のキッチンでお料理も捗ります♪ 食器棚や食洗機も標準仕様!

トイレ

トイレ

洗面所

清潔感のあるユーティリティ 人気の三面鏡収納付き洗面化粧台を採用! 洗面台横には便利な可動棚があります♪

玄関

広々とした玄関

1階洋室

リビング横にある6.0帖の洋室は来客時や子どもの遊び場としても大活躍です♪

洋室A

6.0帖の洋室A 全居室収納付きです♪

洋室B

5.9帖の洋室B

洋室C

6.0帖の洋室C

階段

手摺付きで安心♪

交通・地図

所在地 札幌市西区発寒11条1丁目11番3号
最寄駅 JR函館本線「発寒中央」駅 徒歩10分
小学校区 発寒小学校 中学校区 西陵中学校
資料を請求する 物件を見に行く

011-213-0701

10:00〜17:00(火・水曜定休)

資料を請求する 物件を見に行く

011-213-0701

10:00〜17:00(火・水曜定休)

物件概要

間取り4LDK 建物面積105.3m²(31.85坪)
土地面積168.75m²(51.04坪) 駐車場(台)4台可(車種による)
築年月(竣工月)1983年4月(築42年) 都市計画市街化区域
建ぺい率/容積率60%/200% 地目宅地
接道状況南側/幅員8.0m/接道長さ12.5m 地勢
用途地域一種住居 取引態様売主
設備上水道・下水道・電気・IH・灯油ボイラー・灯油パネルヒーター 建物構造規模木造2階建て
引渡し予定月即時 その他制限事項
資料を請求する 物件を見に行く

011-213-0701

10:00〜17:00(火・水曜定休)

周辺環境

  • JR函館本線「発寒中央」駅 徒歩10分
  • 地下鉄東西線「発寒南」駅 徒歩22分
  • 発寒小学校 徒歩8分
  • 西陵中学校 徒歩19分
  • ダイイチ発寒中央駅前店 徒歩9分
  • セイコーマート発寒11条店 徒歩3分
  • ツルハドラッグ発寒中央駅前店 徒歩9分
  • DCM発寒店 徒歩18分
  • 札幌発寒十一条郵便局 徒歩10分
  • はねだ内科クリニック 徒歩11分
  • 発寒いたどり公園 徒歩2分
  • イオンモール札幌発寒 徒歩28分
  • ドン・キホーテMEGA新川店 徒歩27分
お問い合わせ物件名
JR「発寒中央」駅 徒歩10分&地下鉄「発寒南」駅 徒歩22分!発寒11条1丁目
お問い合わせ内容(複数回答可)必須
氏名必須
姓:
名:
ご住所必須
郵便番号検索

市区町村
番地丁目
ご連絡先電話番号必須
例:0117378888(ハイフン無し)
メールアドレス必須
例:sample@sapporonavi.jp(半角)
COZYの中古住宅専門店をどこでお知りになりましたか?必須
ご意見やご質問などがありましたらご記入ください

※ ご入力いただきました情報は「個人情報保護について」に従って取り扱われます。
※ 送信できない場合はお手数ですが 011-213-0701 までお問い合わせください。

TOPへ

ジョンソンホームズはレバンガ北海道を応援しています/johnson homes ラウンジシート誕生!ジョンソンホームズはレバンガ北海道を応援しています/johnson homes ラウンジシート誕生!