COZYの中古住宅専門店
札幌の中古住宅+リフォーム
リフォーム実績500件以上

COZYの中古住宅専門店 TOP > 販売物件 > 地下鉄「麻生」駅 徒歩18分!北46条東4丁目

販売物件 ESTATE

中古戸建リフォーム済み
地下鉄「麻生」駅 徒歩18分!北46条東4丁目

販売価格
3,290万円(税込)
月々支払い例
82,414

頭金0円/ボーナス払い0円

※40年返済 ※3年固定金利0.95%

■リフォーム工事中!(2026年5月中旬完成予定)
■地下鉄南北線「麻生」駅 徒歩18分!
■JR札沼線「太平」駅 徒歩15分!
■地下鉄東豊線「栄町」駅 徒歩24分!
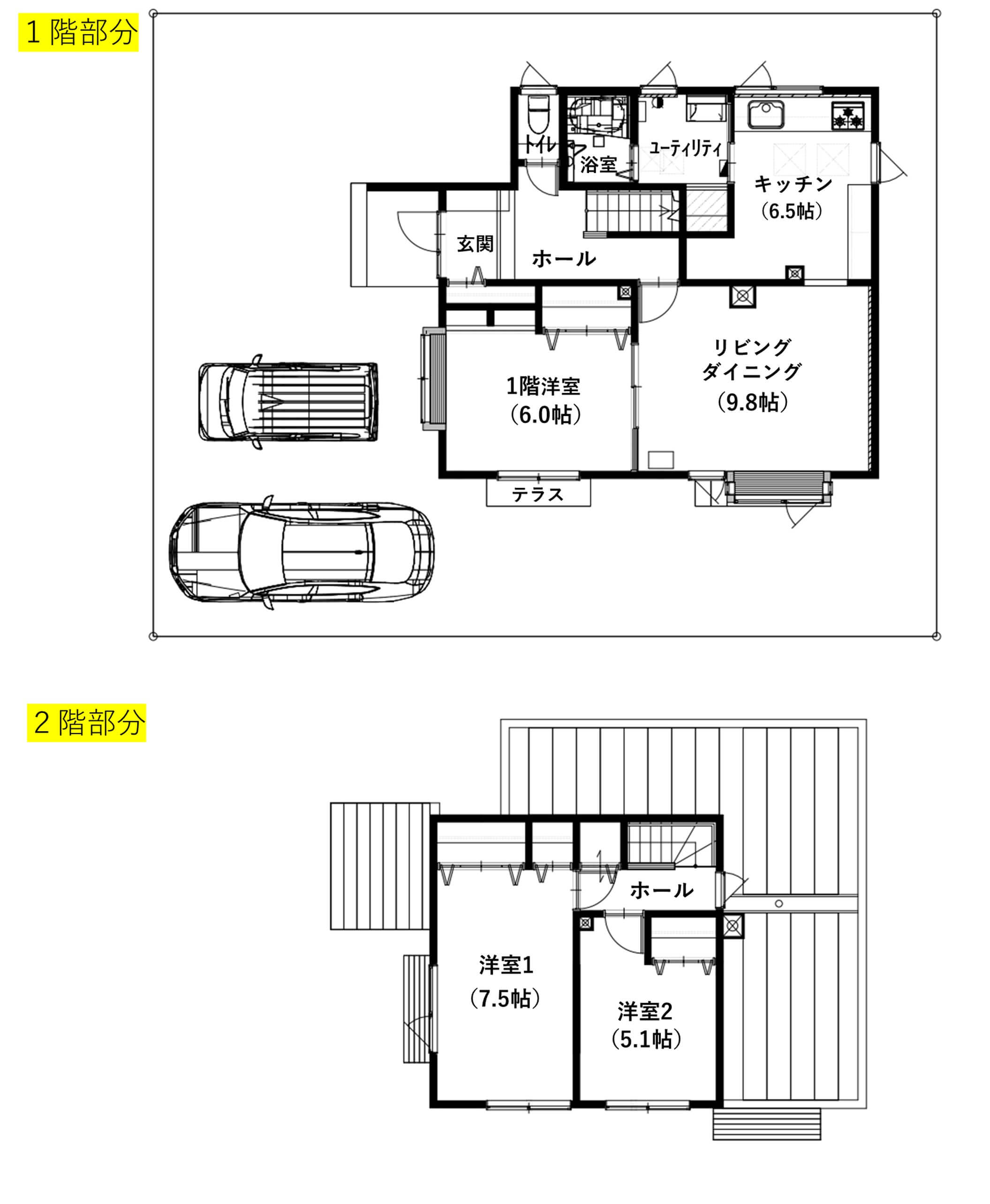
■土地約52坪!建物約27坪3LDK!

リフォーム内容

キッチン交換/ユニットバス交換/洗面化粧台交換/トイレ交換/全室フローリング上張り/クッションフロア貼替/全室クロス貼替/建具交換/照明&カーテン取付/給湯ボイラー交換/給水給湯配管交換/灯油FFストーブ交換/食器棚新設/一部網戸・ガラス交換/オイルサーバー新設/ブレーカー交換/インターホン交換/和室→洋室化/シューズクローゼット交換/外壁・屋根塗装/外構工事 ※リフォーム内容は予告なく変更となる場合がございます。

リビング

9.8帖のリビングダイニング♪ コーディネーターがお家をフルコーディネートしています!

リビング

南向きで陽当たりも良く、明るいリビング♪

リビング

家族だんらんの時間をゆっくりと過ごすことが出来ます♪

リビング

全室のカーテン・照明も標準仕様♪

キッチン

広々とした6.5帖のキッチンでお料理も捗ります♪ 食器棚や食洗機も標準仕様!

ユニットバス

ユニットバスはお湯が冷めにくく、長時間温かさを保つことができる魔法びん浴槽を採用!

ユーティリティ

清潔感のあるユーティリティ 人気の三面鏡収納付き洗面化粧台を採用!

ユーティリティ

ユーティリティにはお好きな高さに調整できる6段可動棚! バスタオルやご家族皆様のお着替え、洗濯用洗剤などの置き場に困りません♪

トイレ

窓もあり、明るい印象のトイレ

玄関

広々とした玄関

玄関

玄関にはステンパイプ付の収納も! 帰宅後すぐに上着を脱げて、出かける際もスムーズに羽織れるため、非常に機能的です。 花粉や雨・雪などで汚れたコートをお部屋に持ち込まないメリットも♪

1階洋室

リビング横にある6.0帖の洋室は来客時や子どもの遊び場としても便利です♪

1階洋室

南向きの大きな窓から明るく暖かい陽の光が差し込みます

洋室A

7.5帖の洋室1 全居室収納付きです♪

洋室A

7.5帖の洋室1 南・西向きの2面採光

洋室B

5.1帖の洋室2

洋室B

5.1帖の洋室2

2階ホール

交通・地図

所在地 札幌市東区北46条東4丁目5番5号
最寄駅 JR札沼線「太平」駅 徒歩15分
小学校区 栄北小学校 中学校区 栄中学校
資料を請求する 物件を見に行く

011-213-0701

10:00〜17:00(火・水曜定休)

資料を請求する 物件を見に行く

011-213-0701

10:00〜17:00(火・水曜定休)

物件概要

間取り3LDK 建物面積91.38m²(27.64坪)
土地面積174.99m²(52.93坪) 駐車場(台)3台可(車種による)
築年月(竣工月)1987年4月(築38年) 都市計画市街化区域
建ぺい率/容積率50%/80% 地目宅地
接道状況西側/幅員8.0m/接道長さ11.82m 地勢
用途地域一種低層 取引態様売主
設備上水道・下水道・電気・個別プロパン・灯油ボイラー・灯油FF式暖房 建物構造規模木造2階建
引渡し予定月相談 その他制限事項
資料を請求する 物件を見に行く

011-213-0701

10:00〜17:00(火・水曜定休)

周辺環境

  • 地下鉄南北線「麻生」駅 徒歩18分
  • JR札沼線「太平」駅 徒歩15分
  • 地下鉄東豊線「栄町」駅 徒歩24分
  • 栄北小学校 徒歩4分
  • 栄中学校 徒歩4分
  • ジェイ・アール生鮮市場北45条店 徒歩2分
  • セイコーマートさいかわ店 徒歩3分
  • ツルハドラッグ北41条店 徒歩11分
  • DCM北栄店 徒歩9分
  • 北海道信用金庫栄町支店 徒歩12分
  • 札幌栄町郵便局 徒歩3分
  • 札幌共立病院 徒歩7分
  • 北46条のびのび公園 徒歩1分
  • ドン・キホーテ北42条店 徒歩14分
お問い合わせ物件名
地下鉄「麻生」駅 徒歩18分!北46条東4丁目
お問い合わせ内容(複数回答可)必須
氏名必須
姓:
名:
ご住所必須
郵便番号検索

市区町村
番地丁目
ご連絡先電話番号必須
例:0117378888(ハイフン無し)
メールアドレス必須
例:sample@sapporonavi.jp(半角)
COZYの中古住宅専門店をどこでお知りになりましたか?必須
ご意見やご質問などがありましたらご記入ください

※ ご入力いただきました情報は「個人情報保護について」に従って取り扱われます。
※ 送信できない場合はお手数ですが 011-213-0701 までお問い合わせください。

TOPへ

ジョンソンホームズはレバンガ北海道を応援しています/johnson homes ラウンジシート誕生!ジョンソンホームズはレバンガ北海道を応援しています/johnson homes ラウンジシート誕生!